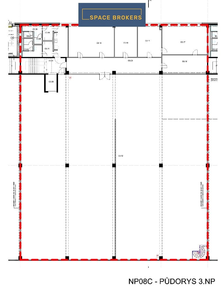
Se souhlasem pronajímatele nabízíme k pronájmu atraktivní obchodní prostory v průmyslové zóně v Horních Počernicích v projektu NORDPARK o velikosti 1,400m2. Jedná se o kompaktní jednotku umístěnou budově s nákladním výtahem ve 3.patře. Ideální pro provoz v kombinaci showroom, sklad, kanceláře a sociální zázemí.
V tomto projektu si můžete pronajmout také prostory vhodné pro:
- moderní kanceláře
- výrobní a vývojové prostory
- showroomy a obchody
- laboratoře
- školicí prostory
- skladové prostory
K dispozici jsou jednotky již od 350m2, a proto nás neváhejte kontaktovat pro nezávaznou konzultaci.
| ID: | 00184 |
| Typ nabídky: | Pronájem |
| Lokalita: | Praha |
| Výměra: | 1.400 m² |
| Stavba: | Skeletová |
| Výška stropu: | 4 m |
