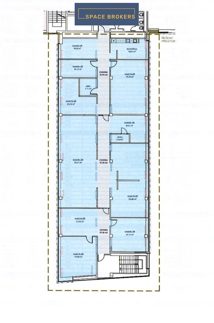
Se souhlasem nájemce nabízíme k podnájmu flexibilní, vybavené a světlé kancelářské prostory v projektu Hadovka office park v Praze 6 ve 3.patře v objektu D o velikosti 503m2.
Tento projekt nabízí pro své nájemce kancelářské prostory ve vysokém standardu a poskytuje jim i ostatní služby v budově jako je fitness, kolárna, kantýna.
Objekt je v těsné blízkosti tramvajové zastávky 20, 26 s napojením na metro trasy A.
Podmínky podnájmu:
- kancelářská plocha 503m2 (včetně vybavení)
- 15,25Eur/m2/měsíc nájemné
- 165CZK/m2/měsíc služby
- až 12x parking - 90Eur/místo/měsíc
- délka smlouvy alespoň 12měsíců nebo do 03/2027
Pro bližší informace se na nás neváhejte obracet.
| ID: | 00183 |
| Typ nabídky: | Pronájem |
| Lokalita: | Praha |
| Výměra: | 407 m² |
| Stavba: | Skeletová |
